Passar para o Conteúdo Principal
Hoje
Hoje
Amanhã
Amanhã
Depois
Depois

siga-nos   Facebook município de Vila Flor

partilhar  Partilhar Carrazeda de Ansiães

Tratamento de Água

imagem
Formação rochosas, Folgares 



CONSIDERANDO QUE:


  • A qualidade das águas subterrâneas para consumo humano, está diretamente relacionada com as condições hidrogeológicas da região, em que a presença de elementos naturais como o Ferro (Fe), Manganês (Mn) e Arsénio (As) se encontram na forma dissolvida devido à dissociação das formações rochosas.

  • imagem
  • imagem
  • imagem
Pirite (Fe S2)                                                 Pirolusite (MnO2)                                     Realger (As2S2)
https://pt.wikipedia.org                                   http://dicionarioportugues.org                      http://old.tcmwiki.com/

Caracterização dos minerais
Pirite Pirolusite  Realger
  • O manganês é um elemento que acompanha o ferro, em virtude do seu comportamento geoquímico.
  • O estado de oxidação destes minerais e sua mobilidade depende do pH, condições Redox e concentração.
  •  As formas químicas dominantes são:

As (III)      Arsenito [H2AsO3-, H3AsO3 ]

Fe            Ferro ferroso Fe 2+, Ferro férrico Fe 3+

Mn           
Mn 2+



sandrina


A ESCOLHA E DIMENSIONAMENTO DO SISTEMA DE TRATAMENTO


PARA A REMOÇÃO DE FERRO, MANGANES E ARSÉNIO NA ÁGUA

É PRECISO TER EM CONTA:

 

  • a origem, a composição e a forma de como se encontram presentes elementos químicos na água, a sua concentração, a quantidade de água a tratar para o cumprimento dos valores paramétricos na legislação em vigor na torneira do consumidor, de modo a salvaguardar  a proteção da saúde humana e os interesses e direitos dos cidadãos no fornecimento de bens e serviços essenciais.
  • a realização de ensaios laboratoriais.
  • a filtração se destina à remoção do material em suspensão e substâncias coloidais da água, podendo também verificar-se redução microbiana e alterações das características da água, e daío tipo de filtração a aplicar depende da dimensão da estação, das condições de adução e da sequência de tratamento.  



  • sandrina
    Seixo de Manhoses
  • sandrina
    Santa Comba da Vilariça
  • o material usado como meio filtrante deverá estar de acordo com a filtração a praticar, de modo a que a espessura do leito, a velocidade de filtração empregues e perda de carga conduzam à obtenção de água com a qualidade pretendida.
  • a presença de algumas espécies químicas que podem influenciar a adsorção de Arsénio, nomeadamente, Ferro, Manganes, pH, fosfatos e sílica, uma vez que na presença de água com pH´s elevados, podem interferir e reduzir a capacidade adsorvente do meio e seu caudal (médio e instantâneo).
  • condições de operação e de qualidade de água tratada subjacente à descolmatação do filtro por contralavagem, uma vez que ao longo de cada ciclo de filtração diminui a velocidade de filtração devido à resistência que o leito filtrante oferece à passagem da água.

A velocidade diminui também quando o nível de água sobre o filtro diminui ou ainda quando o nível de água abaixo do leito filtrante aumenta.

  • solução eficiente e limpa na escolha dos filtros para a remoção de Ferro, Manganês e Arsénio, designadamente, largo período de vida útil, baixa perda de fricção e não exigência de regeneração, sendo necessárias apenas contra lavagens para eliminar o produto precipitado.
  • impacto ambiental: depois de saturado os meios filtrantes podem ser lançados nos locais habituais de resíduos não perigosos.


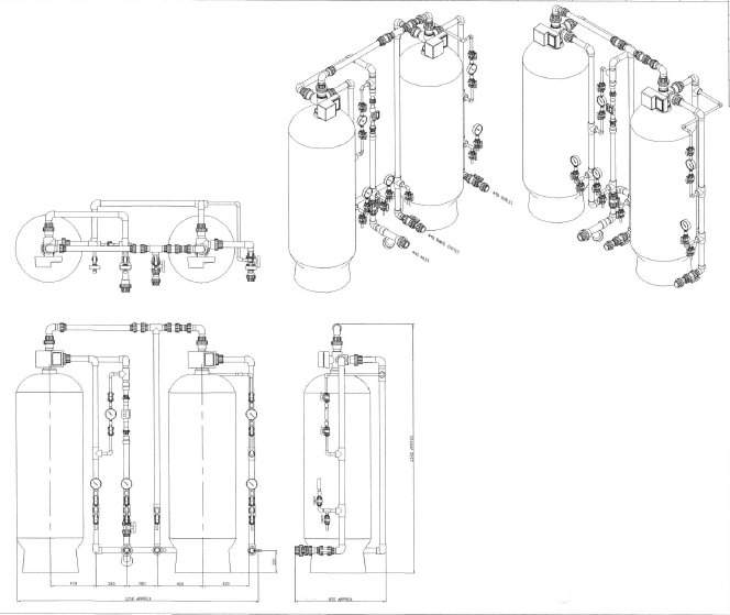
Dando sequência a trabalhos desenvolvidos numa base regular, afigura-se útil apresentar algum realismo quanto à percepção da constituição de um Sistema de Tratamento de Água: 

                      

imagem
Sistema de Tratamento de Vilarinho das Azenhas constituído por:

_ Depósito de decantação onde promove o arejamento natural e 
oxidação química do Fe e Mn 
_ Central hidropneumática
_ Filtro de remoção de Fe e Mn
_ Filtro de remoção de As
_ Desinfeção



No seu conjunto, constituem obras de engenharia que materializam um primeiro passo para uma transição racionalmente fundamentada condizente com as boas práticas na matéria.

  • imagem
  • imagem


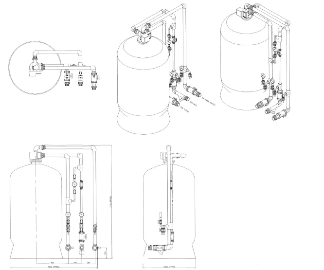
Para efeitos de lógica analítica, parece interessante que se detalhe ainda mais o processo de filtação no que respeita à sua constituição:

http://kiev.all.biz/

sandrina


1_ Filtro PRFV

2_ Válvula automática

3_ Entrada de água bruta, saída de água tratada e saída de água após lavagem do meio em contra corrente

4_ Tubo distribuidor hidrálico

5_ Crivo de entrada/saída de água

6_ Leito de resina de abrandamento

7_  Meio de remoção específico (Fe, Mn e As)


Portanto, a consecução da qualidade de serviço poderá resumir-se como dispondo de um leque de PROCESSOS DE TRATAMENTO ESPECÍFICOS para o tratamento de água, designadamente:

  1. Processo de Tratamento para a remoção de Fe e Mn
  2. Processo de Tratamento para a remoção de As
  3. Remoção de impurezas
  4. Desinfeção
  5. Central hidropneumática


1_ PROCESSO DE TRATAMENTO UTILIZADO NA REMOÇÃO DE FERRO E MANGANES:

  • Arejamento natural através de arejadores de gravidade seguido de oxidação química pelo hipoclorito de sódio aumentando a cinética da reação química, oxidando o Fe e o Mn dissolvidos na água bruta nas formas Fe 2+ a Fe 3+ e Mn 2+ a Mn 4+, respetivamente, para que precipitem originando partículas sólidas, a pH superior a 4.


sandrina
        A oxidação do Manganes é mais lenta do que a do ferro e requer maiores quantidades de oxigénio 
       (as quantidades teóricas estequiométricas são: 0,14 mg/l de O2 por mg/l de Fe e 0,30 mg/l de O2 por mg/l de Mn)



  • DECANTAÇÃO é a operação unitária de tratamento que consiste em remover da água sólidos em suspensão, através da sedimentação dessas partículas por ação da gravidade, as quais de acumulam no fundo do depósito de decantação, respeitando o tempo de retenção (h) e carga hidráulica superficial (m3/m2.h).

Trata-se de uma operação que permite reduzir o teor de certos parâmetros da água, como a turvação, a cor, o ferro, o manganês e a dureza, conferindo-lhe melhor qualidade para ser posteriormente filtrada.

sandrina
Depósito de decantação, Meireles

  • FILTRAÇÃO, constituída por filtros oxidantes são usados tanto em tratamentos por gravidade como em sistemas de água pressurizada.
Este produto atua como um catalisador insolúvel para aumentar a reação oxidante entre o oxigénio dissolvido e os compostos de ferro e manganês subsistentes na água, que precipitam e se podem filtrar facilmente.

sandrina
Vieiro


2_ PROCESSO DE TRATAMENTO UTILIZADO NA REMOÇÃO DE ARSÉNIO:


A tecnologia de mitigação de arsénio na fase líquida utilizada é por processos de adsorção usando composto granular à base de ferro.

O sistema básico de funcionamento de uma instalação de arsénio em água, consiste fundamentalmente num filtro ou numa serie de filtros contendo composto granular à base de ferro. 

À medida que a água passa através do meio adsorvente, as moléculas de As ficam regularmente distribuídas nas superfícies dos micro poros que permeiam a estrutura sólida utilizada, sendo lá mantidas por forças físicas e químicas e desde que o adsorvente tenha uma boa resistência mecânica, é irreversível.


Especificação do meio de remoção de arsénio
Parâmetro Unidades Concentração
Conteúdo em Fe2O3 %(p/p) 70%
Densidade de massa g/cm entre 0.4 e 0.6
Conteúdo solúvel em água %(p/p) <3

 


3_ REMOÇÃO DE IMPUREZAS


A água passa por filtros de areia e/ou carvão ativado, nos quais ficam retidas as pequenas partículas sólidas que ainda possam existir.



4_DESINFEÇÃO

A desinfeção destinada ao abastecimento público tem por objetivo a destruição de microrganismos patogénicos, nocivos para a saúde pública, ou de outros organismos indesejáveis, assegurando a proteção contra o risco de contrair doenças infeciosas de origem hídrica, sendo este um objetivo prioritário e indispensável.


O processo de desinfeção depende dos condicionalismos locais e da qualidade da água na origem, devendo ser procurado um compromisso entre a eficácia do processo (inativação dos microrganismos), a formação de subprodutos e a garantia de um teor residual ao longo do sistema de distribuição (proteção sanitária).


A desinfecção da água é efetuada através da aplicação de cloro, concretamente, hipoclorito de sódio.

O hipoclorito de sódio dissocia-se imediatamente na água em ácido hipocloroso (HOCl) e ião hipoclorito (ClO-). O ácido hipocloroso é a espécie mais activa no mecanismo de desinfeção, razão pela qual é denominado de cloro ativo. O efeito germicida do ácido hipocloroso é cerca de 100 vezes superior ao do ião hipoclorito.


O produto é fornecido sob a forma de solução aquosa, com uma concentração em cloro ativo até 15% (m/m)2.

Trata-se de um produto corrosivo que é armazenado em local seco e com um sistema de ventilação, não sujeito a fontes de calor e onde não existam materiais oxidáveis. 

A estabilidade do produto depende da concentração em cloro ativo, da temperatura e da duração do armazenamento, das impurezas presentes na solução e da exposição à luz solar. Este produto apresenta perdas de cloro ativo na ordem dos 2 a 4% por mês. A decomposição do hipoclorito de sódio com o tempo vai influenciar o caudal e a taxa de doseamento, bem como potenciar a produção de subprodutos indesejáveis, tais como cloritos e cloratos.


CONTROLO OPERACIONAL

 

  • Para garantir a proteção sanitária da água até à torneira do consumidor, é essencial assegurar um teor de cloro residual livre ao longo do sistema de distribuição. De acordo com as diretrizes da Organização Mundial de Saúde, uma concentração de 0,5 mg/l em cloro residual livre na água, para um tempo de contato de 30 minutos, é suficiente para garantir uma desinfeção satisfatória. 
  • O doseamento do cloro é definido em função do teor de cloro residual livre pretendido na rede de distribuição. Para uma otimização do processo de desinfeção, nomeadamente a garantia da aplicação da quantidade correta de desinfetante, o doseamento é realizado em modo automático (a quantidade de cloro injetada é ajustada ao caudal de água a tratar). 
  • Verificação do teor de cloro residual livre, por zona de abastecimento, através de equipamentos de medição portátil. As instalações do sistema de cloragem são objeto de uma atenção permanente por parte dos operadores. São efetuadas visita regulares às instalações para verificar o normal funcionamento do equipamento instalado, bem como o consumo dos reagentes. 
  • Para controlar a qualidade da água distribuída, são realizadas análises aos parâmetros microbiológicos (por exemplo, número de colónias a 22ºC e a 37ºC, bactérias coliformes e E. coli). 
  • Tendo em conta que o estado de conservação das condutas e a turvação da água são factores que condicionam a eficácia da desinfeção, é dada uma atenção especial à gestão da rede de distribuição. São elaborados e implementados planos de ação regulares tais como planos de descarga e planos de higienização regular dos reservatórios existentes. Este procedimento minimiza potenciais contaminações da rede de distribuição pública e das respectivas redes prediais. 

 

5_CENTRAL PNEUMÁTICA


sandrinaVilarinho das Azenhas

As centrais são compostas por:

  • duas eletrobombas iguais montadas em paralelo numa base comum;
  • coletor de compressão;
  • acumulador hidropneumático;
  • válvulas;
  • manómetro;
  • pressostato (1 por bomba);
  • um quadro de comando com proteção de motor.


As bombas são automaticamente operadas de acordo com a necessidade do sistema por meio de pressostatos (um para cada bomba) para o incremento de pressão à entrada da instalação de tratamento de água.







Aceda à sua Área de Munícipe para ter acesso aos Serviços Online, Gestão de Newsletters entre outras funcionalidades.

Câmara Municipal de Vila Flor mais contactos »

Avenida Marechal Carmona
5360-303 Vila Flor

Telefone 278 510 100
Fax 278 512 380
E-mail geral@cm-vilaflor.pt

  • logótipo wc3
  • logótipo compete
  • logótipo gren
  • logótipo ue
  • impresa wiremaze